Vous trouverez ci-dessous les résumés de 4 des 8 conférences présentées lors de cet événement. Les 4 autres vous seront présentés lors de notre prochaine édition du journal Montréaler, au début du mois de mai.
PARTIE 1 – Contenu
- Optimisation de la production d’eau sanitaire au Hyatt ( bloc : Projets innovants en efficacité énergétique)
- La géothermie nouvelle génération au service de la biodiversité ( bloc : Projets innovants en efficacité énergétique)
- L’Université McGill choisit les réseaux intelligents pour son campus du centre-ville (bloc : Projets de réseaux urbains – le développement durable dans les universités)
- Le Complexe des Sciences du Site Outremont de l’Université de Montréal : un défi de taille (bloc : Projets d’envergure – Projets innovants en efficacité énergétique)
Optimisation de la production d’eau sanitaire au Hyatt
Bloc : Projets innovants en efficacité énergétique
Optimisation de la production d’eau sanitaire au Hyatt, présentée par Simon Kattoura, ing., Directeur des services écoénergétiques, Kolostat et Daniel Robert, ing., Vice-président, Ventes et Ingénierie, Kolostat

De gauche à droite : M. Simon Kattoura et M. Daniel Robert
L’Hôtel DoubleTree by Hilton, anciennement connu sous le nom de Hyatt, situé à Montréal au Complexe Desjardins est un bâtiment de 475 000 pieds carrés qui a été construit dans les années 1970. Cet hôtel de 16 étages et deux sous-sols est spacieux et compte 600 chambres réparties sur 12 étages. Les étages restants comprennent quatre étages d’espaces communs : salles de bal, restaurants, salle de conférence, piscine intérieure, etc.
Les dépenses énergétiques avant la réalisation du projet étaient de 1 083 109 $ pour l’année 2017. Au cours des dernières années, une série de projets énergétiques ont été lancés pour réduire la consommation d’énergie et les coûts associés. Le projet énergétique présenté par messieurs Kattoura et Robert a permis d’optimiser le chauffage de l’eau chaude domestique (ECD) et la récupération de chaleur pour préchauffage de l’air neuf.
Optimisation du chauffage de l’ECD
La vapeur était anciennement fournie par le bâtiment voisin et constituait une source d’énergie de chauffage de redondance. Le système principal était alors constitué de trois réservoirs d’ECD et le chauffage se faisait par des serpentins électriques. Puisqu’il s’agit d’un hôtel, la demande en ECD peut varier considérablement au cours de la journée. Bien que rarement utilisée, la vapeur comme 2e source d’apport de chaleur, contribuait à assurer la continuité du service à la clientèle. Afin de réduire la consommation d’énergie globale de l’hôtel, les concepteurs ont fait le choix de remplacer la vapeur par une solution plus écoénergétique. L’optimisation a été réalisée à l’aide de thermopompes et la création d’un backup en amont des réservoirs d’ECD. Le chauffage de l’ECD (24h/24h – 365) est maintenant principalement effectué par des thermopompes (trois unités de 100 Tonnes), avec un COP de 3.5 vs 1. Il convient de préciser que les thermopompes ont été dimensionnées pour répondre à 70% de la charge de l’ECD.
Redondance et innovation
Au cours d’une visite des installations, les concepteurs ont fait le pari de convertir le réservoir existant de la buanderie en masse thermique. Effectivement, après enquête, il a été déterminé que le réservoir pouvait être stérilisé et utilisé comme unité de stockage à 120 ⁰ F (48.8 ⁰C). Bien que la nouvelle solution ne dispose pas d’un système de backup à 100%, comme le système à vapeur précédent, les concepteurs ont estimé que la probabilité que plusieurs pompes à chaleur tombent en panne en même temps est assez faible.
Approche synergique
Finalement, mentionnons que pour ce projet, les concepteurs ont appliqué une approche synergique afin d’optimiser la récupération de chaleur pour la production d’ECD (priorité de chauffage pour l’ECD), le chauffage de l’air neuf (44 000 CFM en 2e priorité) et aussi la réduction du coût de l’eau refroidie (climatisation des 600 chambres). Pour ce dernier point, la chaleur a été récupérée sur l’évacuation des toilettes (40 000 CFM). De plus, des économies d’énergie ont été réalisées en raccordant les thermopompes au réseau d’eau refroidie existant.
Sommaire financier du projet éconergétique
- Coût total incluant financement: 724 800 $
- Appuis financiers: 230 908 $ : Hydro-Québec: 115 990$ et TÉQ: 114 918$
- Économies de coût d’énergie: 143 283$
- PRI simple: trois ans
- PRI financée: 3.4 ans
- VAN (20 ans, 6.5%, 2%) = 1 467 116 $
- TRI (20 ans, 2%) = 28%
Résumé par Shawn Walton, comité édition
Présentation en format PDF disponible.
La géothermie nouvelle génération au service de la biodiversité
Bloc : Projets innovants en efficacité énergétique
La géothermie nouvelle génération au service de la biodiversité présentée par Fanny Eppner, Ph.D., Spécialiste en développement de solutions éconergétiques et Michel Roy, ing., Directeur ingénierie – Développement de projets, Société de Contrôle Johnson Canada S.E.C.

Gauce à droite : M. Michel Roy et Mme Fanny Eppner accompagnés de M. André Labonté
Lors de cette conférence, Mme Eppner et M. Roy nous ont présenté des principes de géothermie nouvelle génération qui sont basés sur les puits à colonne permanente ou PCP. Puis, ils ont démontrés comment cette technologie peut être avantageuse dans les conditions propres aux Québec, grâce à la réalisation d’un projet à Montréal : le complexe d’unités en copropriété Tropiques Nord situé aux abords du fleuve St-Laurent.
Introduction
D’abord, Mme Eppner a expliqué que les PCP sont un type d’échangeur de chaleur souterrain hybride entre les boucles fermées et les boucles ouvertes. Dans ce type d’installation, le fluide caloporteur est recirculé dans un puits ouvert sur le roc et bénéficie d’un certain apport de l’aquifère. La figure ci-dessous illustre le principe de fonctionnement.

Une saignée (injection well) permet d’injecter de l’eau au besoin si la température du puits varie trop. Ainsi, en saison chaude, la température du puits aura tendance à augmenter au fil du temps et en pompant l’eau de l’aquifère vers le puits, on peut ramener la température au niveau initial. Mme Eppner explique que ce type de puits est fréquent aux États-Unis et au Japon, mais peu utilisé au Québec. Les avantages sont une efficacité élevée et des coûts de construction moins élevés que les boucles fermées très répandues au Québec. Compacte, cette technologie s’intègre facilement à un bâtiment existant, même dans un milieu urbain où les contraintes sont multiples. Mme Eppner cite en exemple la Cathédrale St-Patrick à New York. En contrepartie, les puits à colonne permanente nécessitent un forage profond, de l’ordre de 300 à 500 m, et des risques géochimiques sont présents.
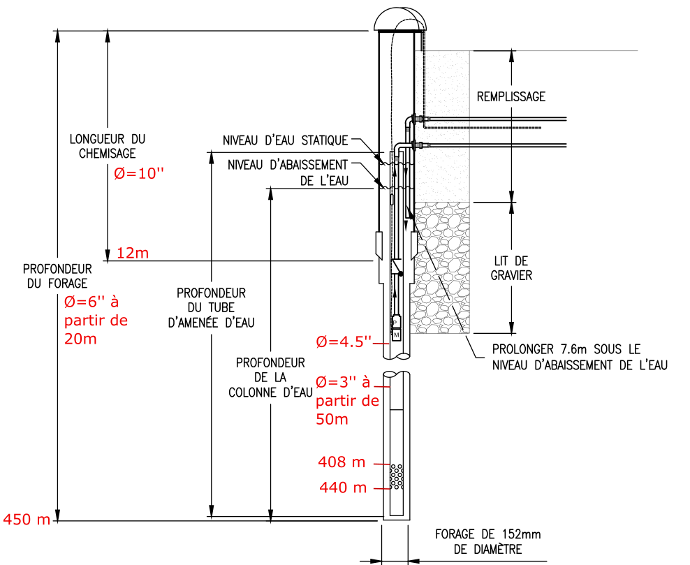
Étude de cas – les condos Tropiques Nord
Mme Eppner et M. Roy ont réalisé un projet de construction de puits géothermiques à colonnes permanentes sur un bâtiment existant à Montréal dans le cadre du projet Tropiques Nord. Ce projet est une tour à condominiums de 12 étages, comportant 120 unités, une serre de 32 000 pi2 et datant de 1989. La présence de la serre qui abrite des espèces exotiques impose une gestion étroite des conditions climatiques telles que le contrôle de l’humidité et du point de rosée pour empêcher la condensation sur les surfaces froides de la serre. Pour améliorer la consommation énergétique du bâtiment sans négliger le confort des résidents, l’équipe M. Roy a procédé en 3 étapes : étude de faisabilité, implantation des mesures et suivi énergétique. Au final, 4 PCP de 450m et un puits de réinjection ont été forés pour fournir les 100 tonnes de thermopompes. Le débit total d’opération prévu est de 1635 m3 par jour avec une saignée d’environ 5%. La figure suivante illustre l’aménagement des puits.

Mme Eppner et M. Roy expliquent que le dimensionnement des puits n’est pas aisé et qu’il dépend de la productivité de l’aquifère et du type de sol. Par ailleurs, il y a eu un bris mécanique de la foreuse lors de la construction. Les séquences de contrôle doivent aussi être ajustées adéquatement. Au moment de la présentation, Mme Eppner et M. Roy étaient toujours en attente des premiers résultats d’opération.
Aspects pratiques et enjeux
Comme les PCP sont ouverts sur l’aquifère, une étude d’impact environnemental doit être faite pour obtenir une autorisation du ministère de l’environnement (MELCC) si le pompage est supérieur à 75 000 L par jour. Un autre enjeu est la qualité de l’eau présente dans l’aquifère à cause des risques de précipitation des minéraux dissous et de corrosion des équipements. La précipitation des minéraux a un impact sur la rugosité des tuyaux et les pertes de charge, la perméabilité du milieu géologique, le transfert de chaleur, le débit de pompage et le débit de réinjection. La corrosion réduit quant à elle la durée de vie des équipements et de la tuyauterie. Au Québec, il peut y avoir précipitation de la calcite et de l’ocre ferreuse. La précipitation de la calcite est sujette aux variations de la température dans le puits et du dégazage du CO2. L’ocre ferreuse a 2 provenances : résultat de la réaction chimique avec l’air ou produit du processus biologique de bactéries ferrugineuses. Il n’existe pas de solution qui permette d’éliminer complètement ces risques, mais des mesures de mitigation sont connues. Mme Eppner recommande de nettoyer régulièrement la tuyauterie et les échangeurs. Elle mentionne que des recherches sont en cours sur ce sujet à l’École Polytechnique de Montréal.
Conclusion
Mme Eppner et M. Roy terminent leur présentation en mentionnant que les PCP sont en pleine expansion au Québec et font l’objet de recherche. Cette technologie compacte est une solution adaptée aux bâtiments existants qui devrait être considérée dans les projets d’économie d’énergie ou de réduction des gaz à effet de serre.
Résumé par Mariline Fréchette, comité Édition
Présentation en format PDF disponible.
L’Université McGill choisit les réseaux intelligents pour son campus du centre-ville
Bloc : Projets de réseaux urbains – le développement durable dans les universités
L’Université McGill choisit les réseaux intelligents pour son campus du centre-ville, présentée par Jérome Conraud, ing., Université McGill et Nicolas Paquet, ing., Directeur efficacité énergétique, Tetra Tech QI inc.

Gauce à droite : M. Marc Beauchemin en compagnie de M. Jérome Conraud et M. Nicolas Paquet
Lors de cette conférence, messieurs Nicolas Paquet et Jérôme Conraud sont venus nous présenter le projet de déploiement de réseaux intelligents sur le campus du centre-ville de l’Université McGill.
Une des caractéristiques de ce campus est qu’il accueille un ratio de chercheurs/étudiants plus élevé que la moyenne au Québec. Ceci impose des besoins particuliers en ce qui a trait aux bureaux et aux salles de laboratoires. Une autre caractéristique du campus est qu’il est étendu sur 4 secteurs (sud-est, sud-ouest, nord-est et nord-ouest) et comporte des bâtiments de dimensions et d’âges très différents (grands édifices modernes et petits pavillons patrimoniaux).


Le projet mis en œuvre par messieurs Nicolas Paquet et Jérôme Conraud s’inscrit dans le programme de transition énergétique de l’Université McGill 2010-2040 qui vise la carboneutralité par trois approches : la réduction, la séquestration et la compensation. La première phase qui a débuté vers 2010 est la réduction de la consommation énergétique, la deuxième phase amorcée en 2014 est la récupération d’énergie, la troisième phase qui est prévue pour 2019 est la transition énergétique et, finalement, la quatrième phase prévue pour 2035 et l’achat d’énergie renouvelables.
Les objectifs du projet sont de réduire la consommation énergétique, de réduire l’émission de GES tout en répondant à la demande croissante de refroidissement et en améliorant le confort des usagers durant les périodes mi-saison. Pour y arriver, l’équipe de l’Université McGill a tenté cinq stratégies : la récupération de chaleur, l’élimination des systèmes de refroidissement à expansion directe ou refroidis à l’eau de la Ville, le remplacement du refroidissement naturel des systèmes principaux par un refroidissement mécanique, le déploiement de réseaux de refroidissement et de chauffage au glycol et finalement le remplacement de certains équipements désuets. Ainsi, pour le refroidissement, l’équipe de l’Université McGill a choisi d’acheminer l’eau glacée partout et toute afin d’éliminer les petites unités de climatisation autonomes et offrir le confort souhaité en mi-saison. Le partage de la distribution de chaleur ou de froid entre différents bâtiments permet d’équilibrer les charges. Par exemple, les zones qui réclament du chauffage utilisent la chaleur excédentaire en provenance des zones plus chaudes qui doivent être refroidies.
L’équipe de l’Université McGill a rencontré plusieurs défis lors de la réalisation de son projet. Elle a dû composer avec des espaces très restreints dans les salles mécaniques, une tuyauterie vieillissante, deux plateformes immotiques différentes qui doivent communiquer ensemble pour optimiser les séquences et la répartition des charges. L’équipe devait aussi remplacer les équipements en fin de vie tout en limitant l’achat de nouveaux équipements mécaniques. De plus, il fallait assurer la protection des serpentins de refroidissement contre le gel en hiver. La coordination des interruptions de services et des équipes de travail sur 12 bâtiments différents a aussi rendu la gestion du projet plus complexe. Finalement, il y avait un travail étroit à faire avec l’entrepreneur général pour gérer les permis de travail à chaud, les échéanciers et les travaux à exécuter en dehors des heures normales.
Au final, le projet a permis de réduire la consommation de gaz naturel de 35% et les réductions des émissions de GES sont estimées à 4 000 tonnes. Le tableau ci-dessous présente les périodes de retour sur investissements (PRI) pour les différents secteurs de travaux.

Résumé par Mariline Fréchette, comité Édition
Présentation en format PDF disponible.
Le Complexe des Sciences du Site Outremont de l’Université de Montréal : un défi de taille
Bloc : Projets d’envergure – Projets innovants en efficacité énergétique
Le Complexe des Sciences du Site Outremont de l’Université de Montréal : un défi de taille, présentée par Dany Gaucher, ing., Pageau Morel et associés et Catherine Bélanger, architecte et Associée, Menkes Shooner Dagenais Letourneaux architectes

Gauche à droite : M. Dany Gaucher et Mme Catherine Bélanger accompagnés de M. André Labonté
Lors de cette présentation, Mme Catherine Bélanger et M. Dany Gaucher sont venus nous parler de leur projet de construction d’un nouveau pavillon des sciences pour l’Université de Montréal. Ce nouveau Complexe des Sciences et situé sur le Site Outremont qui était anciennement une gare de triage. Avec les années, cette affectation industrielle a isolé les quartiers Outremont, Ville Mont-Royal, Parc-Extension et Mile-End. Mme Bélanger estime que ce site de 38 hectares sera en développement pour les 20 prochaines années. On doit notamment y construire des logements, des condominiums, des commerces et des résidences.
Pour Mme Bélanger le projet du Complexe des Sciences est l’occasion de recréer les liens entre les quartiers, à ce titre, plusieurs rues ont été (ou seront) prolongées par la Ville et l’équipe d’architectes a créé un axe « vert » qui enjambe les rails de chemin de fer encore actifs. Ainsi, grâce à un positionnement des bâtiments plus en retrait par rapport à la rue et à l’utilisation d’une fausse élévation, la promenade en pente douce permet de rejoindre la station de métro Acadie à pied. Mme Bélanger explique que le design de cet aménagement n’a pas été facile compte-tenu des contraintes de la réglementation de la Ville sur la percée Nord-Sud. Au final, la « promenade bleue » relie les stations de métro Acadie et Outremont, elle contribue à créer un espace de vie extérieur au cœur du complexe et elle encourage les liens entre les quartiers voisins pour l’établissement d’une université qui se veut citoyenne.
Par ailleurs, un travail de recherche a été fait pour permettre à la lumière naturelle de pénétrer au centre du rez-de-chaussée qui est très étendu. Ceci a mené à l’intégration de petites cours intérieurs composées de végétaux indigènes. Ainsi, la bibliothèque qui est située au rez-de-chaussée offre plusieurs points de vue sur ces jardins encaissés sous l’espace public extérieur.
Pour les 2 sections du bâtiment, le choix de murs-rideaux vitrés permet d’ouvrir la vue sur les quartiers avoisinants. Ces murs-rideaux préfabriqués en usine ont permis d’accélérer la construction. Une attention particulière a été portée pour assurer la circulation d’air chaud près de la fenestration pour éviter la condensation.
Mme Bélanger présente ensuite les 4 principes cardinaux de la conception architecturale : l’interactivité et l’interdisciplinarité qui permet les rencontres fortuites, la mutualisation des ressources et des espaces, c’est-à-dire un partage des laboratoires des équipements, la proximité pour encourager la continuité entre toutes les activités d’enseignement et de recherche, et finalement, l’ouverture et la transparence.
Mme Bélanger termine en expliquant la répartition des locaux sur un étage typique de laboratoires. Les laboratoires à accès restreint sont localisés sur les murs extérieurs, puis il y a une zone tampon de bureaux et locaux de soutien au centre et, donnant sur l’atrium et accessibles à tous, il y a les bureaux des professeurs.
Mme Bélanger cède ensuite la parole à M. Gaucher qui aborde les aspects techniques du projet. Le complexe comporte 352 hottes chimiques et nécessite 650 000 pieds cube par minute d’air frais ce qui est énorme. Le complexe regroupe les départements de biologie, chimie, physique et géographie qui ont des exigences spécifiques propres à leur discipline. Il fallait entre autre composer avec des chambres environnementales, des laboratoires laser, des cylindres de gaz comprimés, des substances toxiques, des salles blanches (classe 1000), etc.
De plus, M. Gaucher explique que les contraintes architecturales limitaient la superficie de la salle mécanique. Un design par puits mécanique multiples était requis pour offrir la flexibilité nécessaire pour s’ajuster aux besoins des différents laboratoires qui n’était pas définis au début du projet. Le design modulaire des systèmes mécaniques (8 unités de ventilation) permet également une flexibilité d’opération afin d’accommoder la demande en fonction des quantités de hottes et d’équipements en fonction.
M. Gaucher termine en détaillant les stratégies de récupération d’énergie : une boucle de recirculation de glycol pour les laboratoires, l’utilisation de serpentins de récupération d’énergie pour rejeter la chaleur et éviter de faire fonctionner les tours d’eau, l’utilisation de l’air des bureaux comme air de compensation des corridors des laboratoire, réduction de l’apport d’air neuf pour les hottes, etc.
En conclusion, cette présentation a permis d’apprécier le travail inventif et conjoint d’une équipe d’architectes et d’ingénieurs dans la réalisation d’un bâtiment d’envergure.
Résumé par Mariline Fréchette, comité Édition
Présentation en format PDF non disponible.

Mot de clôture
Énergir tient à remercier ASHRAE Montréal d’avoir organisé le séminaire développement durable sur le thème INNOVER ET INSPIRER POUR NOTRE ENVIRONNEMENT, un sujet d’importance à l’ère de la transition énergétique.
Cette année encore, les conférences ont été très intéressantes. Des sujets forts variés qui traitaient de réseaux urbains, de GNR (gaz naturel renouvelable), de solaire, des intentions du gouvernement fédéral d’investir vert au Québec et évidemment, d’efficacité énergétique. Un remerciement spécial à nos conférenciers pour avoir accepté de partager avec nous leurs projets, leurs défis et surtout, leurs solutions inspirantes. Énergir tient à exprimer sa fierté d’avoir contribué aux succès d’un évènement aussi porteur et rassembleur.
Photo : Caroline Duphily, Énergir
Dans notre prochaine édition de mai – PARTIE 2 – CONTENU
- Est-ce que la stratégie fédérale pour un gouvernement vert influencera le marché du Québec ?( bloc : Stratégies gouvernementales et standards)
- Passive House Developments across North America ( bloc : Stratégies gouvernementales et standards)
- L’Université Laval et le déveoppement durable à travers son réseau urbain (bloc : Projets de réseaux urbains – le développement durable dans les universités)
- Solaire thermique : comment aider cette technologie à percer au Québec ? (bloc : Projets d’envergure – Projets innovants en efficacité énergétique)
